DBID:
1936
Systémové číslo:
P19V00000177
Datum zahájení:
05.04.2019
Nabídku podat do:
25.04.2019 10:00
Název, druh veřejné zakázky a popis předmětu
- Název: Klimatizace do podkroví Žlutého domu
- Druh veřejné zakázky: Dodávky
Stručný popis předmětu:
Osazení klimatizačních multi splitových jednotek pro klimatizování kanceláří v podkroví Žlutého domu.
Postup zadání, předpokládaná hodnota
-
Postup:
VZMR s uveřejněním výzvy
-
Režim veřejné zakázky:
VZ malého rozsahu
- Předpokládaná hodnota:
neuvedena
Zadavatel
- Úřední název: Domov u studánky
- IČO: 00854310
- Poštovní adresa:
Anenská Studánka 41
56301 Anenská Studánka
- Id profilu zadavatele ve VVZ: Z2019-007945
Adresa kontaktního místa
Nabídky, resp. žádosti o účast podávat na:
Domov u studánky
Anenská Studánka 41
563 01 Lanškroun
Kontakt
Žádné záznamy k zobrazení.
Kvalifikační dokumentace není poskytována (resp. je součástí zadávací dokumentace).
Zadávací dokumentace je poskytována elektronicky bez omezení.
Zadávací dokumentace - soubory ke stažení
| Název |
Popis |
Jméno souboru |
Velikost |
|
Zadávací dokumentace
|
|
DOMUST zadávací
dokumentace.docx
|
62,31 KiB
|
|
příloha č. 1 výzvy
|
|
DOMUST výzva - příloha č.
1.docx
|
42,21 KiB
|
|
krycí list
|
|
DOMUST krycí list.docx
|
45,67 KiB
|
|
návrh smlouvy o dílo
|
|
Návrh SOD_Žlutý
dům_klimatizace.doc
|
104,50 KiB
|
|
výkaz výměr
|
|
Výkaz výměr chlazení
kanceláří.xlsx
|
11,16 KiB
|
|
tepelný zisk 202
|
|
tepelný zisk 202.pdf
|
208,80 KiB
|
|
tepelný zisk 203
|
|
tepelný zisk 203.pdf
|
208,68 KiB
|
|
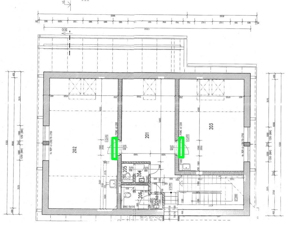
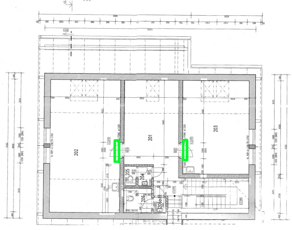
umístění venkovní jednotky
|
|
UMISTENI VENKOVNI JEDNOTKY.jpg
|
139,72 KiB
|
|
umístění vnitřních jednotek
|
|
UMISTENI VNITRNICH
JEDNOTEK.jpg
|
160,62 KiB
|
|
Žlutý dům - půdorys
|
|
Žlutý dům - půdorys.pdf
|
113,37 KiB
|
|
Žlutý dům - řez
|
|
Žlutý dům - řez.pdf
|
69,20 KiB
|
Zadávací dokumentace - výzva
| Datum |
Druh zprávy |
Odesílatel |
Předmět |
o. |
|
05.04.2019 15:03
|
výzva
|
info@domust.cz
|
Výzva
|
|
|
Žádné vysvětlení, doplnění či změny zadávací dokumentace k zobrazení. Zkontrolujte též blok Zadávací dokumentace.