Zadávací dokumentace

Zadávací řízení: Klimatizace do podkroví Žlutého domu

Informace o dokumentu

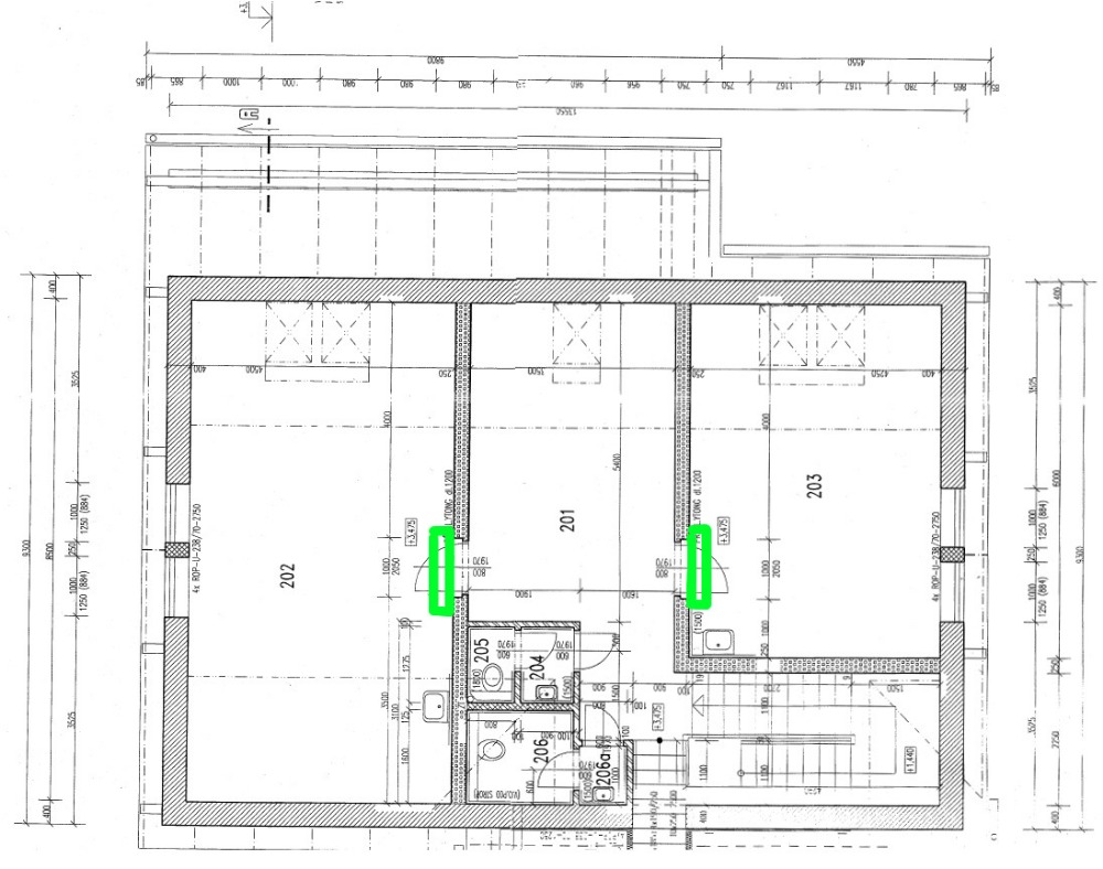
Název: umístění vnitřních jednotek
Popis:

Aktuální verze souboru

Jméno souboru: Obrázek JPEG UMISTENI VNITRNICH JEDNOTEK.jpg
Velikost: 160,62 KiB
Aktuální verze souboru: 08.04.2019 08:39:21
Otisk MD5: c2126e6c55822c07483b3657ab940993
Otisk SHA256: a6c2569ac835afb650989e2924c578bb5a4ce0450563d26d848a59a596978861

Historie souboru

Datum Název Popis Typ dokumentu Jméno souboru Velikost
V 08.04.2019 08:39:21 umístění vnitřních jednotek zadávací dokumentace - UMISTENI VNITRNICH JEDNOTEK.jpg 160,62 KiB