Zadávací dokumentace

Zadávací řízení: Pacientská pásová myčka nádobí

Informace o dokumentu

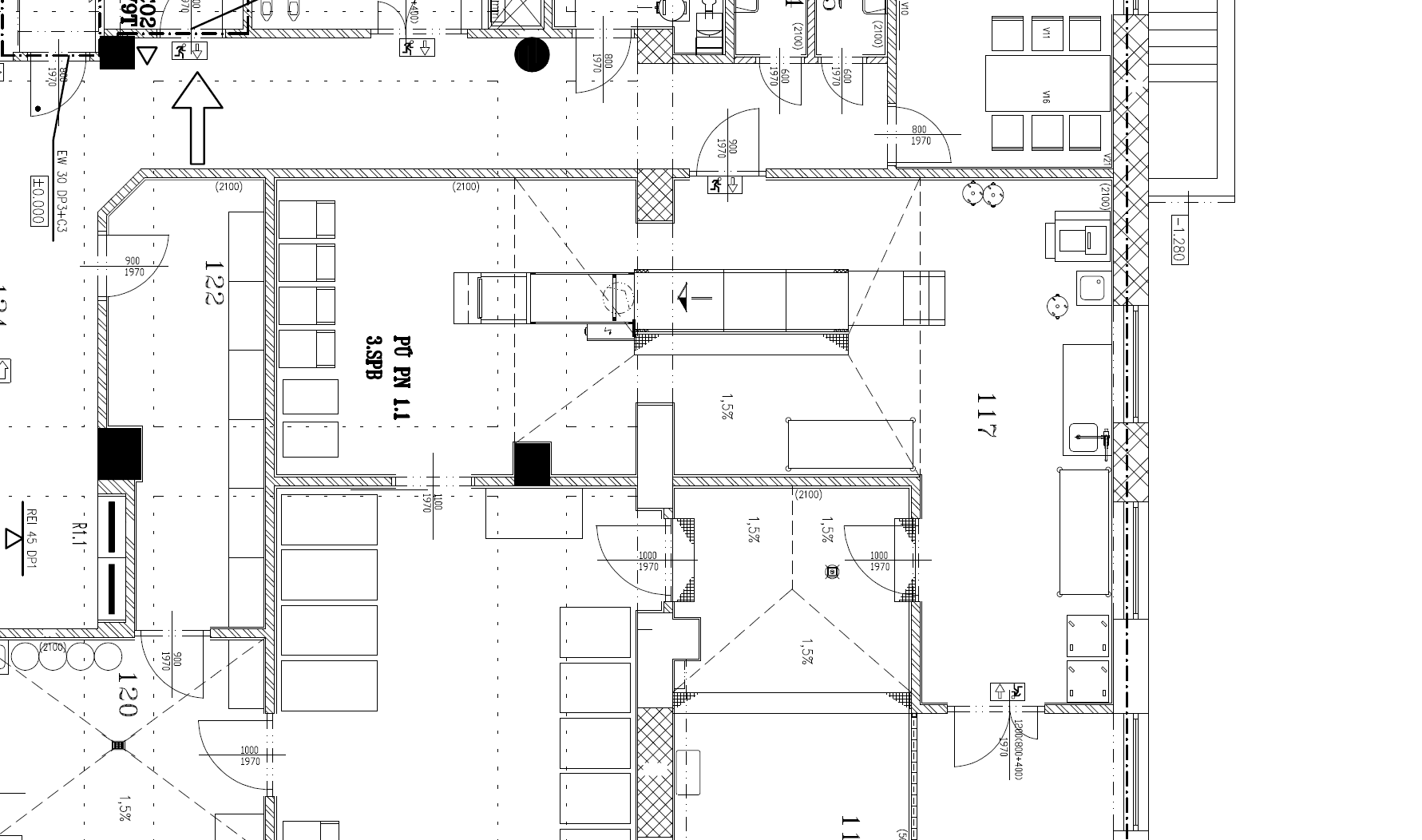
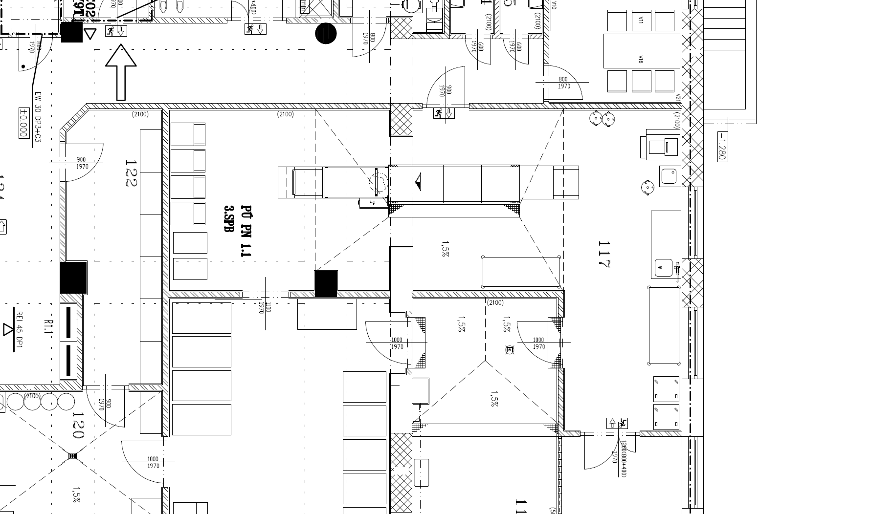
Název: Snímek umístění myčky
Popis:
Uveřejnění dokumentu na Profilu: 20.01.2025 10:22:47

Aktuální verze souboru

Jméno souboru: Obrázek PNG Snímek místění pásové myčky.png
Velikost: 159,81 KiB
Aktuální verze souboru: 20.01.2025 10:22:47
Otisk MD5: 83f6b2802e21edd1b324af9c3472d8cc
Otisk SHA256: 5353367e4968f4a38b988c53e88b8174acd2a09bc3aada97fbedfe5a198ce7a4

Historie souboru

Datum Název Popis Typ dokumentu Jméno souboru Velikost
V 20.01.2025 10:22:47 Snímek umístění myčky zadávací dokumentace - Snímek místění pásové myčky.png 159,81 KiB