Přijatá zpráva - vysvětlení, doplnění, změna dokumentace

Zadávací řízení Výměna oken 2025 - 2. etapa
Odesílatel Markéta Drahošová
Organizace odesílatele Obchodní akademie a Střední odborná škola cestovního ruchu Choceň [IČO: 49314661]
Příjemce Všichni (včetně veřejnosti)
Datum 11.11.2025 15:10:39
Předmět Re: Žádost o vysvětlení zadávací dokumentace

Dobrý den,

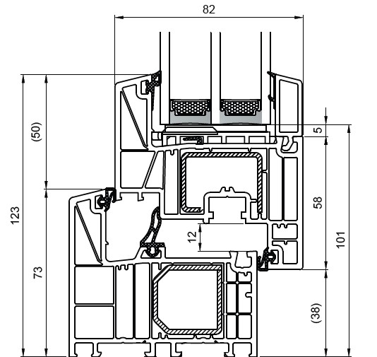
dle přiloženého řezu profil téměř odpovídá stávajícímu. Posouzení nabídek proběhne po jejich přijetí komisí, která bude požadovat vzorek k posouzení rozměrů i barevnosti na místě, jak je uvedeno ve vyhlášené výzvě.

Rozhodnutí, zda se budete zadávacího řízení účastnit, je Vaše svobodné rozhodnutí.

Děkuji za pochopení i já.

Původní zpráva

Datum 11.11.2025 14:03:17
Předmět Žádost o vysvětlení zadávací dokumentace

Vážený zadavateli,

žádáme Vás o jednoznačné vyjádření, respektive odsouhlasení přiloženého řezu námi nabízeného okna.

V opačném případě se nebudeme tohoto zadávacího řízení účastnit.

Děkujeme za pochopení.


Přílohy
řez nabízeného okna.jpg (54,26 KiB)